Sélectionner une page

Parc Bourran

LIEU
Mérignac (33)

 LE PROJET
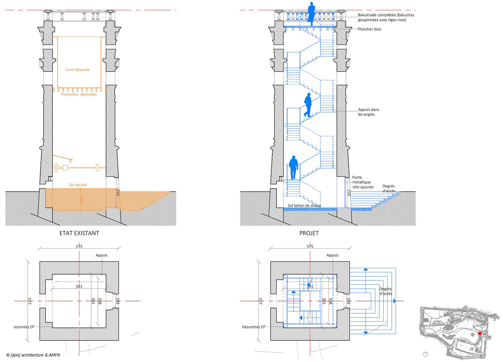
Restauration des fabriques et de l’enceinte.
Les origines du parc Bourran remontent à la puissante famille éponyme qui le possède jusqu’à la Révolution Française. Différents propriétaires se succèdent jusqu’à son rachat par le banquier Léopold Piganeau en 1854. Ce dernier en s’entourant alors de l’architecte Jules Lafargue et du paysagiste Louis-Lucy Le Breton va créer le parc romantique vers 1870. Le château du Bourran est alors totalement reconstruit et le parc réaménagé à la mode romantique en y intégrant notamment de nombreuses Fabriques.
Malgré les vicissitudes du XX° siècle et l’appétit dévastateurs des promoteurs, le projet initial garde encore de sa splendeur et le parc actuel constitue l’un des principaux poumons verts de la ville de Mérignac.
Le projet consiste à restaurer l’ensemble des murs de l’enceinte, ainsi que les fabriques telles que la tour du château d’eau, les grottes et ces cascades, le pont romantique, le portail monumental et de nombreux emmarchements jalonnant le site. Le diagnostic a également permis de mettre en perspective la restauration de l’ancien labyrinthe et d’un ancien ponton.

 

Caractéristiques du site
Architecture civile du XIX° siècle.
Site et édifices protégés au titre des Monuments Historiques.

 

MAÎTRISE D’OUVRAGE
Ville de Mérignac

 MAÎTRISE D’OEUVRE
Atelier Rémi Pottier  – Architecte du patrimoine, associé
[apb] architecture  – Architecte du patrimoine, mandataire
Laurent Taillandier – Economiste de la construction
Trouillot & Hermel – Paysagiste

 SURFACE
750 ml d’enceinte et les 4 fabriques.

COÛT
1 300 000 € HT

ÉTUDES & RÉALISATION
Accord cadre mono attributaire. Mission de BASE + DIAG