Sélectionner une page

Musée de l’Île d’Oléron

LIEU
Île d’Oléron (17)

 

LE PROJET
Restructuration complète du musée de l’île.

En dépit de son emplacement central, le musée souffre aujourd’hui d’un déficit de lisibilité dans l’environnement urbain. L’accès au musée reste peu évident pour le public et l’entrée est peu mise en valeur avec un espace d’accueil limité.
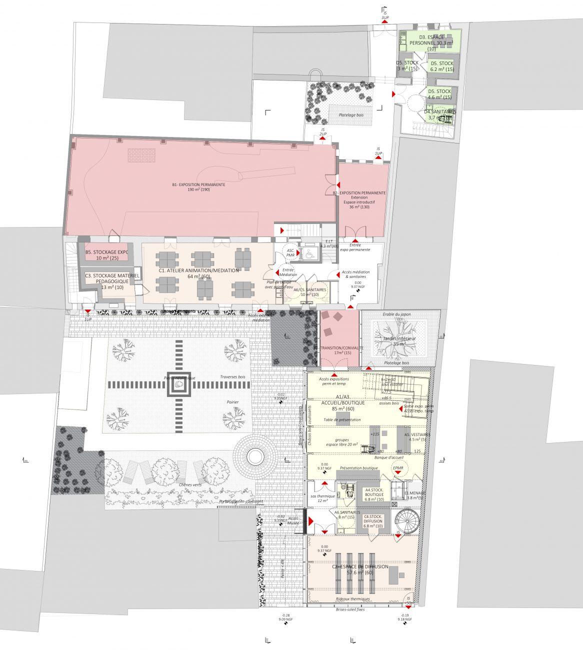
La nouvelle aile du musée est implantée perpendiculairement au bâtiment existant. Cette disposition permet à la fois de développer un grand linéaire de façade donnant sur le jardin recomposé, de donner à voir une nouvelle façade largement visible depuis la place et de venir masquer le mur de l’héberge de l’immeuble voisin.
Le volume général de l’extension est calé sur celui du bâtiment existant. Une galerie légèrement plus basse établit la liaison entre l’extension et le musée actuel, ce qui permet notamment de se décoller du bâtiment existant afin de développer un jardin intérieur entre les deux constructions,
La proposition architecturale reprend ici les principes typologiques observés sur l’Île, avec un bâtiment longiligne présentant un pignon en alignement de l’espace public. Les matériaux utilisés sont en cohérence avec les enjeux environnementaux. Le bois en structure, vêture et menuiserie, le béton de chanvre, l’enduit à la chaux et des pierres de moellon en remploi.

 

Caractéristiques du site
Architecture civile des XVIII° et XIX° siècle.
Bâtiment protégé dans le cadre du site isulaire sensible.

 

MAÎTRISE D’OUVRAGE
Communauté de communes de l’Île d’Oléron

MAÎTRISE D’OEUVRE
Atelier Rémi Pottier  – Architecte du patrimoine, mandataire
[apb] architecture – Architecte du patrimoine, associé
Rouge Bordeaux – Paysagiste
InTech – Bureau d’études structure, fluides, CSSI
E2CT – Économiste de la construction
Stéphanie Vaillat – Graphiste
General Acoustics – Études acoustiques

SURFACE
1 000 m2.

COÛT
1 400 000 € HT

ÉTUDES & RÉALISATION
Concours classé second